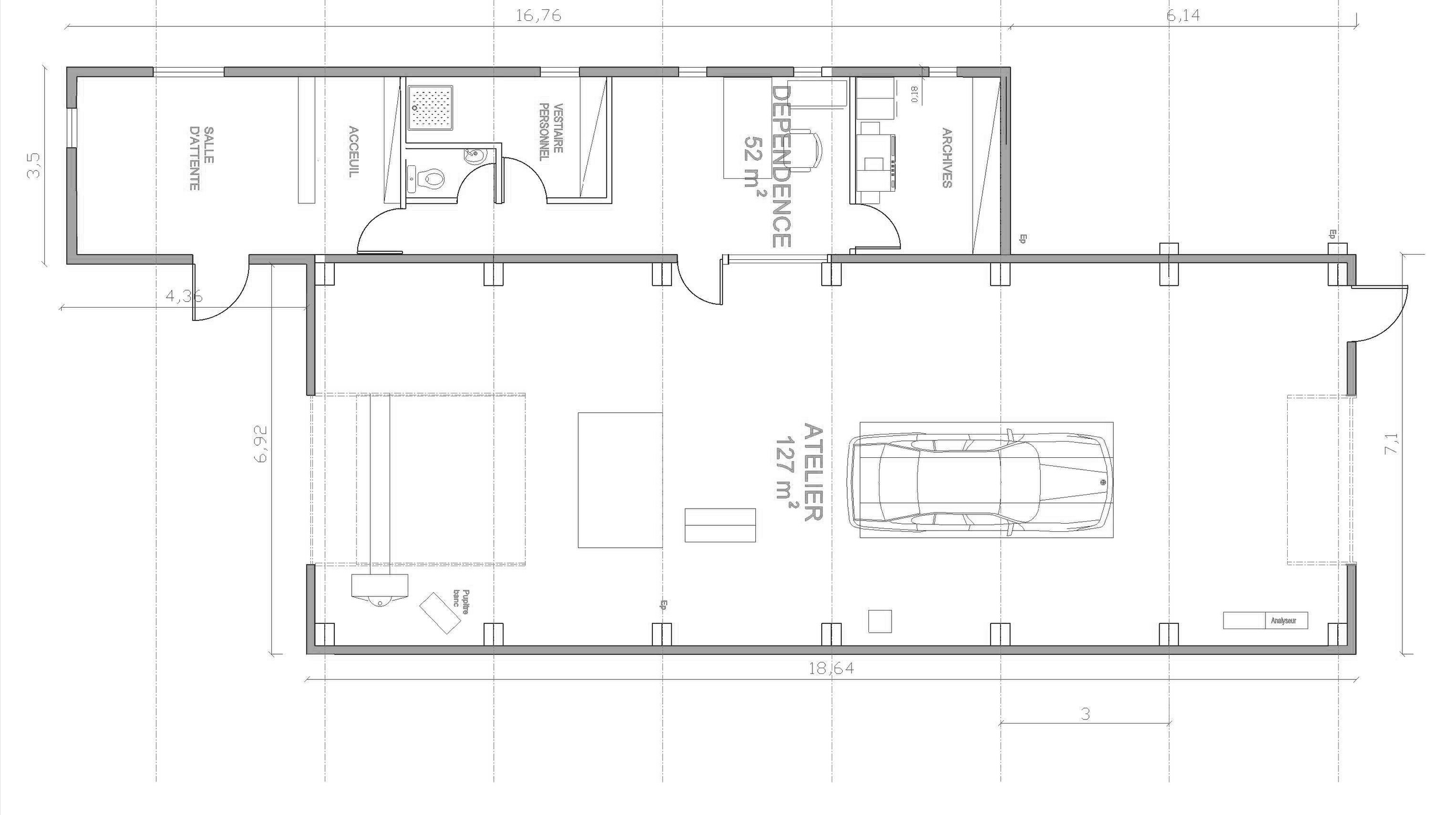
Une architecture fonctionnelle et responsable

CENTRE DE CONTRÔLE TECHNIQUE – MUNSTER

Réalisé intégralement en bois issu de filières locales, le bâtiment s’inscrit dans une démarche de circuit court valorisant les ressources et savoir-faire du territoire. L’écriture architecturale privilégie la sobriété et la lisibilité, au service d’un programme fonctionnel clairement identifié.

La conception rationnelle du projet permet une optimisation des moyens constructifs et techniques, assurant la maîtrise des coûts tout en répondant aux exigences d’usage et de durabilité. L’organisation des espaces garantit des circulations efficaces et un fonctionnement fluide.

Ce projet illustre une approche mesurée de l’acte de construire, où exigence environnementale, qualité architecturale et efficacité programmatique sont étroitement liées.

FICHE TECHNIQUE

Lieu : Munster 68

Budget : 160K € HT

Performance thermique : RE 2012

Mission : Esquisse / APS

Images du project

Autres Projets