Un extérieur en suspension

TERRASSE / JARDIN SUSPENDU

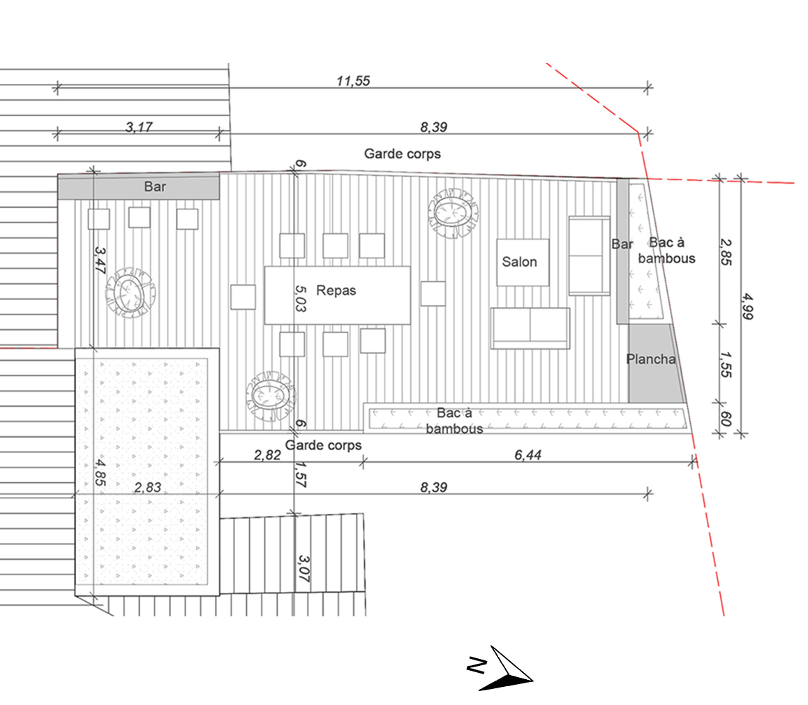
Le projet transforme une contrainte — l’absence d’espace extérieur attenant — en opportunité architecturale. Une terrasse d’environ 50 m² est conçue comme une véritable extension du lieu de vie, offrant un rapport renouvelé au plein air.

Pensée comme un belvédère domestique, cette plateforme suspendue devient un espace habité à part entière, propice à la convivialité, à la contemplation et aux usages quotidiens. Elle instaure une nouvelle relation entre intérieur et extérieur, sans contact direct avec le sol.

Réalisée en bois local, l’architecture adopte une écriture sobre et chaleureuse. Le recours aux circuits courts et à un système constructif adapté permet, là encore, une part d’auto-construction, renforçant le lien sensible entre l’habitant et son architecture.

FICHE TECHNIQUE

Lieu : Wihr-au-Val 68

Budget : 25K € HT

Performance thermique : SO

Mission : Esquisse / APS

Images du project

Autres Projets